Real estate brokerage
不動産仲介
生活施設が近く利便性良好!古民家住宅として再生可能な平屋
【中古住宅】高松市新田町甲

800万円
- 所在地 高松市新田町甲94-10
- 校区 古高松南小学校・古高松中学校
駅・スーパー・コンビニ・ドラッグストアが徒歩圏内、生活至便な立地。
築61年、古民家住宅として再生可能。
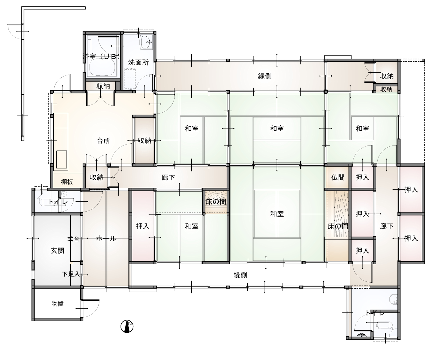
土地91坪、建物約40坪、広い小屋裏収納庫あり。
キッチン8帖、南北に縁側のある平屋住宅。
周辺情報
交通
JR屋島駅 300m(徒歩約4分)
バス馬場先停 550m(徒歩約7分)
教育
古高松南小学校 850m(徒歩約11分)
古高松中学校 1,600m(徒歩約20分)
買い物
マルナカ 350m(徒歩約5分)
ローソン 300m(徒歩約4分)
ドラッグストアひまわり 500m(徒歩約7分)
物件概要
所在地
高松市新田町甲94-10
地目
宅地
土地面積
301.10㎡(約91.08坪)
建物
129.88㎡(約39.28坪)
木造スレート葺平屋建て
物置 13.78㎡(約4.16坪)
建築年月日
昭和39年6月新築(築61年)
間取り
5K(和4.5帖×3・和6帖・和8帖・キッチン8帖)
道路
西側 約5m(私道 42条1項5号)(位置指定道路)
法規制
都市計画区域内非線引き地域
準工業地域
建ぺい率
60%
容積率
200%
設備
公営水道、公共下水、プロパンガス、四国電力
備考
現状渡し
取引形態
仲介
お問い合わせフォーム
物件に関するお問い合わせは、お電話または下記のフォームから承ります。
お電話でのお問い合わせ
087-844-8020
営業時間:9:00〜17:00
(定休日:水曜日)